有爱的日子·致敬你们 | 与时间赛跑 火线出图的江苏设计人
| 发布:2020-02-14 |
1860


2020新年伊始,新冠肺炎爆发并向全国蔓延,江苏省启动突发公共卫生事件一级响应,各行各业勇挑重担,全力参与到战“疫”当中。建筑设计单位和设计师以专业担当起社会责任,临危受命,以设计人的行动火速奋战在工作室,在图纸前,在项目现场……助力防疫之战,与时间赛跑,跑出江苏速度,硬核支撑的苏大强,必须有我,必定有我,江苏设计人!



南京·东大设计人
奋战“小汤山”应急医疗中心
4天,仅4天!从接令到出图!
1月27日,南京市委、市政府紧急决定在现有南京市公共卫生医疗中心的基础上,扩容建设应急工程,要求2周内完成总面积20240平方米,总计288间装配式应急病房楼和1栋32间医护人员隔离用房及相关配套工程设计与建设。

南京市公共卫生医疗中心鸟瞰图

南京市公共卫生医疗中心鸟瞰图
疫情就是命令。1月29日傍晚,东南大学建筑设计研究院接到通知后,单位迅速进入一级响应,常务副院长曹伟立刻赶赴现场,同时迅速组建了院领导挂帅的设计团队,连夜启动方案设计, 24小时内完成方案设计并报审定稿。20多人的设计团队通宵达旦、克服疫情期间的太多不方便,克服一切困难,忘我工作,连续作战,于2月2日提交全套施工图设计成果,完成现场设计交底。

▲时间进度

▲工作现场

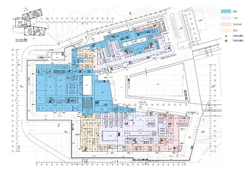
▲总平面图


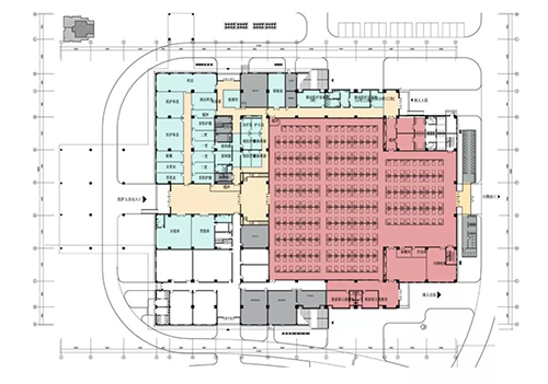
▲单元平面图

▲安全防范平面图

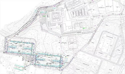
▲室外综合管网图
项目环境的复杂,多种因素的交织、时间的紧迫,不容许设计有一丝疏忽。南京“小汤山”2.0应急工程设计在参考借鉴北京小汤山医院、武汉火神山和雷神山应急医院建设经验同时,也形成鲜明的“南京模式”:平战结合、应急与永备相结合。场地基础和各种设备主管线是永久的,而装配式集装箱模块化的架空建筑则可以在极短时间内在现场拼装,待疫情过后即可拆除回收,场地恢复为绿地和停车场地,但作为应急灾备场地的功能则永久保留。同时,通过BIM优化设计,指导工厂模块化生产,实现了高效的工厂生产和现场装配施工。




▲现场实景

苏州·启迪设计人
紧急支援医疗隔离区和负压病房改造
1月30日,由于疫情救治的紧迫需求,苏州市政府决定紧急加建应急医疗隔离病区和第五人民医院负压病房改造项目。启迪设计集团临危受命,迅速抽调骨干设计人员,夜以继日制定应急行动方案。在公司总裁查金荣和规划设计二院院长程伟的带领下,设计师们毅然投入到项目设计中,分秒必争,2月2日,实现48小时内项目施工图交付,加速应急医院建设,支援一线抗疫工作。

▲时间进度

▲工作场景

▲连夜搭建隔离病房框架


▲建成实景

南通·中衡设计人
奋战应急传染病医院扩建工程
面对疫情,中衡设计集团立即响应,接受南通某人民医院应急扩建工程(应急传染病医院)设计任务,以设计人的智慧、勇气与担当,参与到这场疫情阻击战当中。
2月2日,接到任务通知,为了能在最短时间内最高质量地完成应急医院设计工作,全国工程勘察设计大师、集团董事长冯正功亲自带领以党员、总监为主的医疗设计团队,第一时间赶赴现场,连夜整理业主资料清单、设计建议、时间计划和总平面草案。同时,和在北京提供线上实时远程技术合作与支持的全国著名医疗建筑设计专家、集团医疗设计中心负责人谷建总建筑师,包括北京医疗设计团队,共同作战,紧急投入到争分夺秒的全面设计工作中。

▲时间进度

▲工作场景

与普通应急病房扩建不同,该项目包含了负压病房、ICU、接诊区、影像科、检验科、预留手术区、医用垃圾、医用气体等功能,建筑面积近1.5万平方米,病房200床,ICU20床,是一间功能完整的传染病应急医院。不同于大多应急临时设计,在该项目设计中中衡设计还自加压力,尽可能地进行了细节把控和品质提升,使完成后的扩建工程不仅可用于疫情紧急情况,还可供疫情结束后、较长时间内作为正规传染病医院使用。


扬州·南大设计人
聚智加急设计扬州隔离病区
江都区第三人民医院是扬州市唯一一所集传染病预防、医疗、教学和科研为一体的三级专科医院、扬州市传染病定点收治医院。为应对新冠状病毒感染的突发疫情,紧急征集提供疑似隔离病房快速智慧建造的解决方案。
该项目是在医院目前空地上新建两层高的隔离病房,用地面积708平方米,建筑面积1400平方米,拟设置28张病床。
南京大学建筑规划设计研究院联合江苏BIM族库研究中心、江苏智憩物联科技有限公司为扬州江都第三人民医院疑似隔离病区设计紧急动员,执行总建筑师廖杰亲自操刀,院总工团队群策群力,设计人员加班加点,仅用一晚就完成了三区两廊的标准隔离病区方案,随后迅速完成了涵盖建筑、结构、水、电、暖、弱电的施工图。

由于用地面积非常紧张,在保证隔离安全的前提下,短时间内统筹考虑消防间距、污洁分流、施工堆场、吊装时序等问题,成为方案设计的最大挑战。项目采用模块化设计,工业化生产集成,装配式建造,由于机动性好,展开部署快速,环境适应性强等诸多优点而能够适应突发的应急医学救援任务。各个模块化系统既可单独使用,也可无缝连接组建成大规模移动医院,既可以共享集装箱内的设备资源,又便于对病患进行快速、高效的医疗观察和诊治。







当前,疫情的发生和蔓延,给各地医疗卫生设施带来严峻的挑战和压力。城市医疗设施一般根据地域特点,结合城镇化格局、人口分布、交通状况、经济发展等因素进行配建,设区市原则上设立一所传染病院,县级城市没有设置要求。从此次新冠肺炎疫情看,由于现有医院、传染病院难以按灾害发生时需求容量进行扩建,需要快速改造“战时”临时医疗中心作为补充力量。

▲武汉体育中心体育馆 方舱医院
城市体育馆一般地块独立、空间开敞,建筑功能分区清晰且相互独立,有多个交通疏散通道,观众、运动员、办公人员等不同人群有独立出入口和流线且不相互交叉,给排水、供电、通讯、无障碍等设施齐全,具备快速改造为具有一定床位规模的临时医疗中心的条件。同时,与应急改造宾馆和宿舍相比,对周围居民干扰相对少、可容纳床位数相对多、医疗护理流程相对短、相同数量医护人员可照料更多轻症患者。
因此,江苏省住房和城乡建设厅组织开展了关于“将体育馆应急改造为临时医疗中心”的可行性研究,通过平战结合,提前储备应急快速改造临时医疗中心的预案,便于灾害发生后第一时间组织实施,确保不延误救护“战机”。



为快速做好临时医疗中心的改造可行性研究,东南大学建筑设计研究院、南京大学建筑规划设计研究院和江苏省建筑设计研究院以我省现有体育馆为研究实例,分别独立开展了可行性研究。三家设计单位迅速响应,院长带队,成立了包括建筑、结构、暖通、给排水、医疗等专业的多学科研究团队,设计师们义无反顾地肩负起超强负荷的研究任务,在两天内高效完成了可行性预案研究。









▲部分可研方案图
三家设计单位的设计论证方案,均综合考虑了改造的应急性、适用性、实操性以及疫情结束后建筑的可逆性,各有特点和适用范围,为城市提供了更加多样化的灾害应对储备选项。

支援防疫,江苏设计人责无旁贷!
一个个数字、一份份方案、一张张图纸的背后,是江苏设计人的责任担当!
江苏,以设计人的志诚拼搏,共赴国难,助力打赢这场没有硝烟的战争!

没有一个冬天不可逾越
没有一个春天不会到来
在这个有爱的日子
我们至诚祝福,我们至诚期待!

来源:建筑·创意·空间(ID:iarchis)
撰文:于春、申一蕾、叶精明
编辑:刘锴
资料收集整理:申一蕾
设计:谢丹娜
感谢东南大学建筑设计研究院、启迪设计集团、中衡设计集团、南京大学建筑规划设计研究院、江苏省建筑设计研究院提供图文资料


