第七届紫金奖建筑赛银奖作品 | 仪式的日常:合肥工业大学
| 发布:2021-03-03 |
2757

第七届“紫金奖·建筑及环境设计大赛”以“健康家园”为主题,吸引了320所高校,346个设计机构,6841人参赛,共征集到方案1678项,评选出紫金奖18项和其他各类奖项235项。
回顾此次比赛,参赛选手积极尝试,创新构筑,创作出有思考、有温度、有品质的设计。
为此,我们精心策划了第七届紫金奖获奖作品系列分享,将18个优秀作品集结成篇,让选手们自己来讲述他们的创作历程,剖析方案的闪光点。

作品编号 | B120-001496
作品名称 | 仪式的日常
设计机构 | 合肥工业大学
主创人员 | 郑赛博
指导老师 | 宣晓东
获奖情况 | 紫金奖银奖、优秀作品奖一等奖
◎作品视频
◎ 主创人员



本案切入核心城市人群,聚焦老年群体,为老年人设计一座“银发日间照顾与长青学习”会馆。
对于老年人而言,健康稳定的生活方式是他们的期望。设计从多维度分析场地信息和使用人群信息,提出“仪式的日常”概念,满足老年群体的理性物质需求和感性精神需求,唤醒日常生活的仪式感,构筑健康养老乐园。希望在提出重构养老模式、复苏场所记忆等策略的同时,为老年人的空间营造提供思维范式。


面对复杂的场地信息,设计从两个维度切入,力图整合信息创造动态的建筑体验,在完成设计概念的同时给予老人们丰富的场所回忆。
一从自上而下的几何学角度入手,设计根据基地几何关系,提出层状几何的形式原型和基于风热压的通风原型以及流线秩序等一系列形式要素,作为建筑形式生成的依据;二从自下而上的现象学角度入手,设计重构养老模式,利用单元照顾模式、音乐、回忆及园艺疗法等策略,响应场地的感官建构,以期复苏场所回忆,回应惯常的仪式。

周边环境
在深入设计的部分,设计将“仪式的日常”重构,在“空间”“结构”“路径”三个角度回应几何学(视觉)仪式感和现象学(体验)仪式感,利用形式操作手法厘清建筑要素。

在场地物质信息方面,建筑巧妙回应场地的气候环境:风环境和雨环境。一方面是场地风环境,作品顺应场地风向提出线性廊道原型,利用风压热压两种通风模式优化线形廊道,为天井垂直风廊加入线性平面的空间组织。其次,以空间组织关系为基础,在垂直通风上赋予天井垂直风廊五感树井的主题。在平面通风上,利用乐器风笛的发声原理来演化天井加廊道的空间组织,生成不同楼层的鱼骨状平面风廊,创造良好的通风环境。


天井垂直风廊
另一方面是场地雨环境,在树井、屋面等处设计大量形式独特的排水构造,让老年人真实地感受到雨水的流动。设计中的五感树井与排水构造给使用者带来了“听风”“触雨”“闻竹”的体验,也加强了使用者对空间体验的仪式感,这种和五感有关的精神疗法将有利于失能失智老人的健康恢复。

独特的排水构造
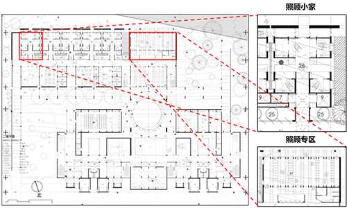
设计利用社区式养老新模式,服务了失能老人、失智老人、照顾人员、城市人群四种建筑复合使用人群。对于单元照顾模式:设计将老年人分组形成不同规模的照顾单元和组团。区别于一般养老机构扁平化管理模式,新的模式将建立家与家之间的邻里感。本案在平面上形成不同规模的小家单元,更利于以老年个体为中心的照顾。与此同时,小家单元利用采光槽和拱形顶形成适合老年人的柔和室内光照。

不同规模的照顾单元
对于社区参与式养老,设计引入四条面向社区的外廊,各类居民由此参与到老人养护过程中。老人、小孩、年轻人其乐融融,这更利于老人们感受到如家般的温暖。参与式养老带来每个单元照顾小家的平面灵活性:一种平面,两种模式。子女来看望老人时,旋转板打开,扩宽空间。老人独自一人时,旋转板围合,在保证私密性和独立性的同时,合理地将复合人群紧紧粘合起来。

面向社区的外廊

方案有机结合场所信息,提出“仪式的日常”概念,通过自上而下与自下而上两方面仪式感建立的深入,突破传统线性建筑要素的组织,从建筑要素的解构入手,提出一系列空间原型、结构类型与路径组织关系,并将仪式感的日常体验上升为一种服务于老年群体的空间营造范式,期待作为一种普适化的思维基础解决老年人建筑问题。


作品图版


主创郑赛博作品自述
问:面对复杂的使用人群,方案是如何处理不同人群之间的关系?
郑赛博:四种人群在本案中穿梭:主要是使用长青学习会馆的健康老人、使用日间照顾中心的失能失智老人、处于照顾咨询中心的服务人员以及前来拜访的城市复杂人群,如赡养老人的子女、参与式养老的小孩们等。面对不同的人群,引入一种清晰独特的路径逻辑:前三类人群使用建筑内部秩序流线——线性的长廊与错置的通廊。最后一类人群共享建筑外部秩序流线——格构状的网络叠置于线性长廊其上形成室内外之间、年龄群组之间交流的温馨界面。
问:“仪式的日常”这一概念是怎样提出的?
郑赛博:设计场地信息主导了概念的生成。场地信息所具有的轴线、肌理、地势线等场地几何学关系强烈暗示了地块本身的对称性、几何性与纪念性——用地本身发出自上而下的仪式感由此被建立;场所鲜明的符号、标识、空间、老年群体的精神追求等现象学体验隐喻了建立感官性、回忆性与体验性的必要——发自老年人群自下而上的仪式感由此被挖掘;场地理性物质和个体感性精神呼唤着场所日常生活的仪式感。
问:在参赛过程中,有什么心得与体会?
郑赛博:本次大赛以“健康家园”为题,我选择老年群体作为切入点。在不断的调查学习中,深入了解我国老年群体的养老状况,积极关注更加先进的养老体验,为老人提供健康生活家园。在建筑本体论层面而言,我也探讨了一种以概念主导,重构建筑要素,并整合空间、结构、路径的设计流程,期许能够建立一种针对老年群体的空间范式。
建造物终归是要服务于大众,为民而做。紫金奖面向社会的竞赛机制让象牙塔中的学子以作品为声,向社会呐喊。同时也时刻提醒着我们:将设计转化为更加易懂的公众语言是建筑师的担当。


决赛现场


作品把建筑对老年群体的关怀组织在若干原型化空间的诠释中:线性的廊道空间形成室内外之间、年龄群组间交流的界面;面性的多功能厅形成集中的活动场所,并通过顶部的拱形结构得到加强;点性的护理单元强调私密与温暖。这些原型所连接的路径承载了老年人生活的日常。

编 辑 | 廖静静
审 核 | 何伶俊 叶精明 徐奕然 申一蕾

第七届“紫金奖·建筑及环境设计大赛”
决赛(综合评审)获奖名单【学生组】




▲第七届紫金奖建筑赛银奖作品 | 生活与生鲜——平疫结合的菜场改造:东南大学
▲第七届紫金奖建筑赛金奖作品 | 移动城堡——平疫结合的疗养院设计:东南大学建筑设计研究院有限公司
▲第七届紫金奖建筑赛金奖作品 | 多维共生的模式语言:南京大学建筑规划设计研究院有限公司
▲第七届紫金奖建筑赛金奖作品 | 泥涌间·避风塘——水乡聚落的演化:安徽建筑大学
▲第七届紫金奖建筑赛金奖作品 | 从“邻避”到“邻附” :东南大学/东京工业大学








