金奖作品荐读 | 船影重重系古今——淮安河西造船厂更新改造设计【东南大学】第九届紫金奖建筑赛
| 发布:2023-04-07 |
3380



引言 FOREWORD
第九届“紫金奖•建筑及环境设计大赛”立足设计服务现实改善、设计创造文化价值,聚焦大运河文化保护传承与创新,聚焦文化活力空间的当代塑造,以“千年运河 活力家园”为主题,共征集到1451项作品(学生组1038项、职业组413项),425家机构(院校)、6353人次参与赛事。首次参赛单位121家,其中,46.28%是省外机构(院校)。
参赛作品聚焦具有真实的历史记忆和历史文化的场地,创作了一批题材多元、亮点纷呈、富有创意的设计方案。近期微信公众号将逐步推出第九届紫金奖建筑赛获奖作品解读,期待能为大运河文化保护传承与创新,大运河活力空间的当代塑造提供思考启迪。

第九届“紫金奖·建筑及环境设计大赛”
【学生组】
金奖作品


◎ 获奖人员

△ 获奖人员(从左至右):邢寓 任秦彤 刘宇轩
创作回顾
Review of Creations





△ 创作草图




过去
现在
未来

△ 运河意象

△ 船影意象

△ 总平面图

△ 设计理念

△ 建筑入口示意图

△ 建筑负一层平面图

△ 建筑负一层场景图

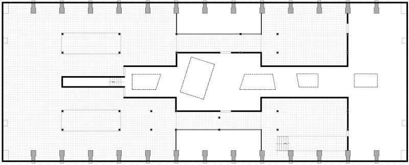
△ 建筑一层平面图

△ 建筑一层场景图

△ 建筑二层平面图

△ 建筑二层场景图


△ 运河-船-厂关系图

△ 剖透视图


△ 船舱体块生成示意
△ 船舱与建筑关系处理示意
设计解读
Design Ideas

你们的方案是如何让历史流动起来,将建筑塑造成运河历史的长廊?
任秦彤
在功能设置上,建筑负一层(河底)是历史博物馆,人们回味过去,沉浸在运河记忆中;建筑一层(河面)是城市客厅,人们参与现代都市的滨水活动;建筑二层(河上)书吧是传承文化的场所,亦可在此远眺重新恢复生机的里运河。
整体建筑空间构建了完整的垂直观览路线,从入口向下的楼梯穿过水面进入博物馆,上到城市客厅,再到书吧。动态的流线反映历史的演进,从回忆到体验再到传承,历史因此而流动。

△ 建筑的负一层(左)、一层(中)、二层(右)流线示意图

在地下空间的设计中如何体现过去的历史印记?
刘宇轩
首先,在建筑的入口设计方面,我们通过长梯将游客和市民引入博物馆中。人们随着踏步拾级而下时,水面逐渐由头顶漫过,仿佛让人们步入运河之下。
其次,在空间意向营造方面,我们将沉淀千年的运河河床意象进行现代空间转译,将博物馆打造为过去繁景记忆的空间重现。结合船间光影意向,在博物馆中进行光影组合,进一步呈现“地下沉淀着古运河”的设计理念。
最后,阳光由置入的光筒射入,建筑一层(河面)水面将射入的阳光折射入负一层(河底)的博物馆中,营造出运河河底水波荡漾的意象,进一步打造出静谧悠然的历史氛围。

选手风采
Moments of Contestants



△ 现场花絮
评委点评
Opinions of the Jury

褚冬竹
重庆市设计院有限公司
总经理、总建筑师
重庆大学建筑城规学院
教授
设计师有强烈的场所营造精神,善于从环境要素中抽取、转译与建筑相关联的特征,并将其融入具体手法。通过对运河的“引入”及对浮船底部意向的表现,旧厂房在立体竖向维度上有了明显差异性的处理方式,形成了可观、可游、可思的新空间。在与历史场景对话的同时,设计方案为自然采光、通风等物理需求提供了解决的可行性,为旧船厂新生提供了有趣的思路。由于未提供负一层平面,对评判设计的整体性和可实施性带来了一定难度。同时,建筑的基本功能、疏散安全等方面还存在一定提升空间。




— END —
审 核 | 何伶俊
编 辑 | 何培根 姚梓阳
校 对 | 庞慧冉
发 布 | 邱 蕾







