作品赏析 ‖ 查金荣:师法自然 拓展边界——和谐共生之“合一”建筑设计
| 发布:2024-08-06 |
1263
引言 FOREWORD
“建筑是富有生命的东西,是凝固的诗、立体的画、贴地的音符,是一座城市的生动面孔,也是人们的共同记忆和身份凭据”。为推动优秀设计的展示和交流、繁荣设计创作,公众号设立“作品赏析”系列,持续开展优秀设计作品的赏析、解读和推介,致力于为行业设计者提供创作参考,为社会大众提供了解建筑文化的窗口,以助力美丽宜居城乡建设实践,助力形成建筑文化社会共识。
本辑为江苏省设计大师、启迪设计集团董事长兼首席总建筑师查金荣的设计作品赏析。


查金荣
江苏省设计大师
启迪设计集团董事长、首席总建筑师
中设协传统建筑分会副会长
江苏省建筑师学会副会长
查金荣总建筑师从事建筑设计30多年,秉持“传承历史,融筑未来”的设计理念,积极倡导“对话与合一”的设计手法,强调设计应尊重城市、尊重环境,融合历史文化,创作具有地域特色并体现时代精神的作品;注重城市空间与功能的“织补”与“链接”,在保留历史记忆的同时实现建筑的活化再生。
他先后创作了130余项建筑优秀作品,包括太湖国际会议中心、金鸡湖国际会议中心、东山宾馆、江苏银行、那拉提游客中心和启迪设计大厦等优秀建筑,获得省部级以上优秀设计奖项60余项(其中,全国绿色建筑创新奖1项,华夏科技进步奖1项);发表论文20余篇;出版《合一的建筑》专著。

01
作品赏析
立体园林——启迪设计大厦
项目名称:启迪设计大厦
项目类型:办公建筑
设计方:启迪设计集团股份有限公司
完成时间:2023年
项目地址:苏州工业园区
建筑面积:78477㎡
摄影版权:本项目图片版权均归张超所有
获奖情况:德国ICONIC AWARDS 2024大奖——至尊奖(best of best);2024美国缪斯设计奖(MUSE Design Awards)办公楼建筑设计、办公空间室内设计两项金奖

▲启迪设计大厦外景:临河而立的“太湖石”
启迪设计大厦位于苏州工业园区金鸡湖商务区,是启迪设计集团新总部大楼。大厦北邻园区主轴线上的中央河景观带,南侧和东侧为市政道路,周边为金融与办公建筑群。
项目设计目标是在实现与周边建筑与景观协调融合的同时,设计一栋绿色、智慧、健康、具苏州园林文化的意境、体现时代特征的高品质人文建筑。

▲项目区位图

建筑体块轴测图

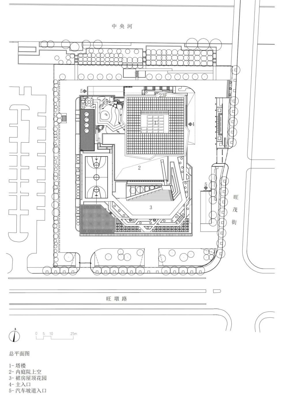
设计大厦总建筑面积约7.8万平米,地上23层,地下3层,建筑最高高度约118.8米。南侧3层裙房与北侧塔楼之间是一个下沉至地下1层的“之”字型内庭院,宽阔的内庭院为建筑中部带来充足的自然采光与通风。
“之”字型内庭院在一层将南部对外的商务区与北侧塔楼办公区分开,使不同功能区的人流得到自然分隔,同时东西贯通的内庭院形成的通风廊道,也加强了内庭院的自然通风效果。


▲下沉庭院(左)从屋顶花园通往塔楼的钢天桥 (右)
设计从苏州传统民居的院落与游廊中汲取灵感,在建筑体块构成中,设计师将“庭院深深”的平面院落向垂直方向延伸,形成独具特色的7进“垂直院落”,7个“院落体块”在垂直方向上叠加,每一进院落均包含一处花园,1500平米的下沉内庭院、近5000平米的裙房屋顶花园、塔楼上5个面向金鸡湖景的共享中庭,大小院落、花园共同构成了高层建筑中的“立体园林”。
每个院落体块之间设有一个“环廊层”,设计师将苏州园林中因地制宜、随形而弯的观景“回廊”元素引入到高层建筑中,形成登高博见、俯瞰远景的空中“环廊”,环廊层可远眺苏州工业园区的“金鸡湖”“独墅湖”“阳澄湖”三湖美景,既是供人们呼吸户外空气,极目远眺、休息交流的生态休憩区,又是设备新风、排烟的设置点,风口隐藏于环廊吊顶的穿孔板中,避免了设备百叶对外立面完整性的破坏。

▲七个“院落”的剖透视图


▲空中环廊借景东方之门(左)塔楼角部细节(右)
作为中央河景观主轴上的重要建筑,设计师期望建筑的形体更具灵动性,通过对建筑四个角部9°的微旋转,使原本四边形平面转变为拥有12个边界的丰富形态。
在塔楼体块单元叠加过程中,每个相邻单元通过镜像形成上下错动,从底层向上仰视,错动的体块仿佛苏州传统街巷层叠的“人”字坡山墙面竖立起来,鳞次栉比组合成了一片独特“街区”,仿佛让人置身于仰视的江南街景之中。
错动体块形成的宽窄变换折线,勾勒出外环廊丰富的空间层次,环廊层最大出挑达到5米,下部形成宽敞的露台空间,上部构成深远的出挑檐廊。虚实相间错动变化的体块组合成了既硬朗又灵动的叠石状立面形态,宛如中央河畔的“太湖石”。

▲仰视的江南
室内公共区域采用了苏式园林化的设计手法,在紧邻中央河景观带的主门厅中引入太湖石、池水、四角亭等园林元素,垂直楼梯与园林曲桥线形融合,形成凌空于水池之上的立体折线,北侧通透的极窄钢框玻璃幕墙系统消隐了建筑边界,使人们在石阶而上的步移景异中,感受室内外环境之美。在塔楼垂直院落的中庭设计中,设计师将现代元素与苏州园林意境融合,通过垂直吊挂的绿化、木格栅的方亭,仿青苔汀步的地毯等苏式元素营造出室内空间的室外园林感受。


▲主入口门厅(左)“步移景异”曲折向上的阶梯(右)

▲拙政园小沧浪水院的曲桥路径(左)门厅中曲折向上的阶梯路径(右)

▲中庭空间剖透视图

▲塔楼体块单元中的“庭院”


▲中庭空间:休息区和楼梯(左)会议区(右)
丰富多样的室内、外运动场地满足了高品质办公空间的健康需求,位于塔楼顶部的第7进院落是屋顶运动区,设计师将屋顶设备集中于核心筒顶部,释放出环绕核心筒一周1500平米的运动场地,设置了羽毛球场、乒乓球场、健身平台等运动设施,同时利用建筑形体的收分在挑檐处设置了一圈200米的空中跑道。结合绿建三星清洁能源的要求,设计将屋顶光伏板与运动场地的遮阳、采光需求相结合,采用了17%透空率的双玻组件光伏板,达到建筑光伏一体化的设计。


▲屋顶运动场:实景图(左)剖透视图(右)
位于建筑裙房绿化环绕中的空中景观篮球场是备受员工喜爱的室外运动场地,球场北侧墙面是由深绿、浅绿组合而成的双玻组件光伏板,光伏发电量较好的满足了篮球场的夜间照明使用。篮球场周边与景观一体化设计的光导管可以在白天为室内带来日光照明,晚上反射室内光线成为屋顶花园的景观灯,双向反射光导管达到了光线的充分利用。得益于多种绿色节能技术手段的应用及对健康环境的加强,启迪设计大厦获得绿色三星、健康三星、LEED金级的预认证。


▲篮球场光伏幕墙(左)裙房屋顶的景观花园(右)


▲光导管与景观的一体化设计

▲总平面图
自然而然——那拉提草原游客中心
项目名称:那拉提游客中心
项目类型:综合性游客中心、商业综合体
设计方:启迪设计集团股份有限公司
设计年份:2021-2023
完成年份:2023
项目地址:伊犁新源县那拉提镇
建筑面积:26491.00㎡
摄影版权:本项目图片除署名外版权均归章鱼见筑所有
合作方:
景观合作单位:苏州金螳螂园林绿化景观有限公司 景观设计一分院一所
内装合作单位:苏州金螳螂建筑装饰股份有限公司 第五设计院
那拉提草原位于新疆维吾尔自治区新源县境内,地处天山腹地,伊犁河谷东端。无垠的草原在广袤的大地上肆意地起伏,深深浅浅的绿勾勒出柔美而有力的线条,白云在绿野之上悠闲的游荡,每年春夏季节山花遍开,野郁金香、野百合等多种野花点缀在辽阔的草原上,在这片绿色的画板上渲染出色彩斑斓……


▲区位分析:新源县(左)基地(右)

▲那拉提草原美景(摄影:中国西部旅游)

▲起伏的屋面勾勒出“空中草原”的主题
拟态自然的起伏屋面
以草原上花朵为原型勾勒出建筑的轮廓,然后拟态空中草原的地形,营造出一个如山峦般连绵起伏的大屋面。起伏的屋面与绵延的草原山丘的走势遥相呼应,宛如一个微缩的空中草原。建筑延续了草原的有机景观,模糊了人工与自然的边界,使得建筑与自然有机融合。


▲屋顶:拟态花朵形状(左)拟态草原起伏(右)
建筑主体覆盖于起伏的花瓣状屋面之下。起伏的屋顶塑造了室内的空间变化——时而高耸,时而低落,使得空间产生了新的“机会”。灵活设置的室内空间配合着屋顶的变化,呈现出赋予张力的戏剧化体验,同时人在建筑中也能获得多样的观景视点。四季变幻的河谷草原风光,透过落地的幕墙倾泻而入室内,置身其中能真切感受到大自然的生动和辽阔。


▲屋顶的起伏(左)与远山呼应(右)

落地幕墙

自然生长的中庭空间
放射性的建筑平面以圆形通高的中庭为核心,串联周边商业和展览空间;如花瓣一般,呈现向环境打开的姿态。

▲放射性的建筑平面
大厅中的螺旋楼梯是视觉的焦点,拥有盘旋向上的动势,行走中的人仿佛被卷入空间漩涡之中,被空间引力缓缓从一个楼层导向另一个楼层。


▲中庭效果图 (左)螺旋楼梯立面图及设计理念(右)
楼梯的中间以36根木纹格栅旋转出一棵大树,漩涡状的灯具犹如花朵摇曳在枝头。韵律感的树状构造,让人在建筑中产生了关于森林的畅想。建筑空间成为自然场所的有机延伸,每个人都能在这里找到让自己足够舒适的空间,获取在自然中自由探索的体验感。阳光从天窗倾泻而入,弥散在曲面空间中。


▲中庭实景(左)中庭的玻璃顶(右)
自然之上的观光之环
建筑融于大地景观,环形观光平台被草原烘托,宛如漂浮在草原上,洁白的毡房点缀于草原间,又如轻盈的云朵游走于山丘之上。如果说建筑以 “消隐的无”回应自然, 而观光平台则以 “几何的有”创造存在。“有无”相生,寻求自然营造的微妙平衡。

▲观光平台漂浮于顶部
观光环廊有内外两个环面,内环连通中庭空间,由旋转楼梯联系下层主体空间;外环则是一圈通透的玻璃幕墙。巩乃斯河畔的自然风光流淌并充盈整个环廊空间。环廊之外则是一圈室外观景平台,游客沿着平台游览,一幅360°山水草原的立体画卷在眼前徐徐展开。人与自然的共鸣在时间、空间中得以延续和强化。


▲观光平台:实景(左)檐下空间(右)

▲平台远眺
椭圆形的弧形屋面覆盖于观光环廊之上,它既营造了一个遮风避雨的空间,又和观光环廊一起形成了一个有标志性的造型。白天它姿态轻盈、玲珑通透,给游客一个观光之所;夜晚,自内而亮的光芒融化在月光如水的夜色中,成为旅人们前行路上的灯塔。它在汲取周围景观的同时,也能给草原回馈一道新的景观。在隐入自然的同时,再植入符号化、几何化的“存在”为场地注入标识性及永恒感。

▲夜晚的观光平台成为旅人的灯塔
成就自然的技艺之美
源于技,方可达于艺。整个建筑采用钢结构预制装配的形式。数百根钢梁顺应屋面起伏的趋势,呈放射状布局,形成一个流畅而富有张力的结构空间。其内部结构以自然法则建构逻辑,以技术能力探究人类制造美的潜力,展现出技术理性所能呈现的逻辑之美,同时又仿佛超越了地心引力和结构法则的束缚。结构的力量之美支撑起这座微缩的空中草原。

▲施工过程中裸露的屋顶钢结构


▲建筑结构示意图
“自然”是客观,“而然”则是尊重客观自然的主观。自然而然的建筑正是在探究自然背后的规律与法则的基础上而进行的创造与升华。建筑作为人与自然的中介,应当纳入一个与环境相通的系统中,与自然环境的共生互融,使人工环境与自然环境相协调、融合、共生。我们只需“略加影响”,从自然中汲取灵感,“自然而然”的设计与建造“自然而然”的建筑。


▲那拉提游客中心:远眺(左)鸟瞰(右)


▲檐口细部

▲总平面图
02
设计团队

启迪设计集团合一工作室团队秉持着严谨、专注、创新的工作态度,深入挖掘传统文化、现代生活与科技发展的交汇点,工作涵盖多种类型公共建筑方案设计、科研项目研究、专利开发等域,持续探索设计创作的新路径、新方法和新理念。张筠之、张颖、张智俊等一批青年建筑师已成为工作室的骨干力量。张筠之荣获长三角青年建筑师奖、江苏省首届江苏省首届紫金文化创意优秀青年、国家艺术基金历史文化名村名镇创意设计人才;张颖荣获2020年度苏州“最美劳动者”;张智俊荣获江苏省第二届紫金文化创意优秀青年。
— END —


